Flight Configuration

Overview

Get Ready for an Exciting 2025-2026 School Year in the Flight Configuration Program!

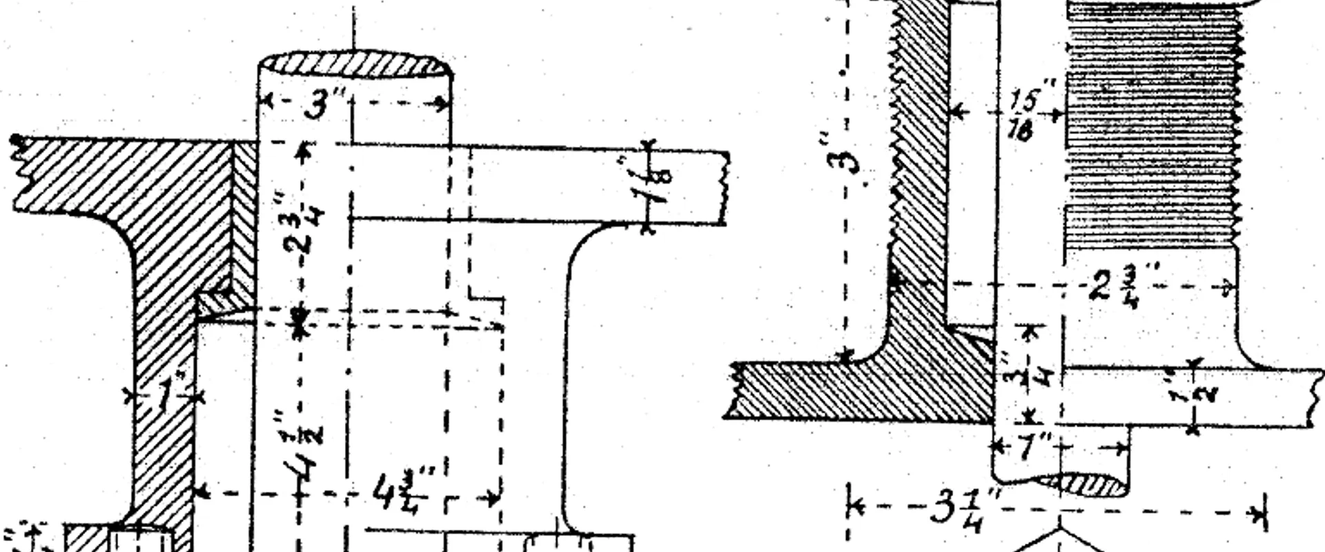
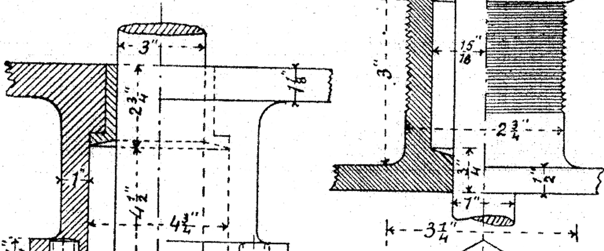
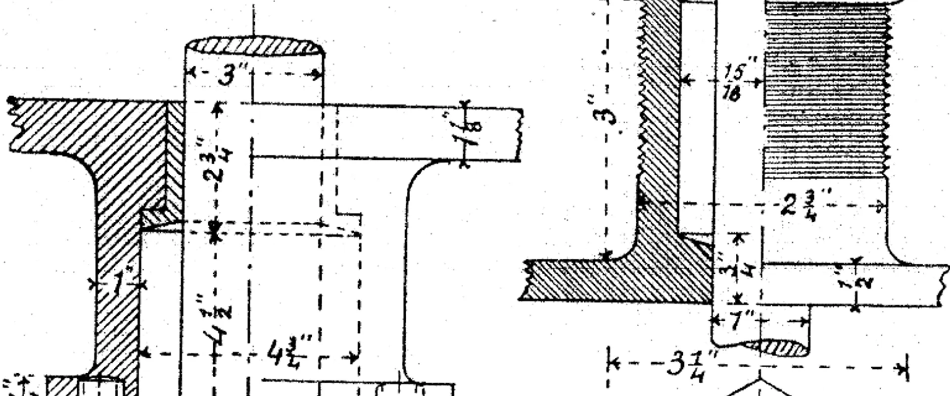
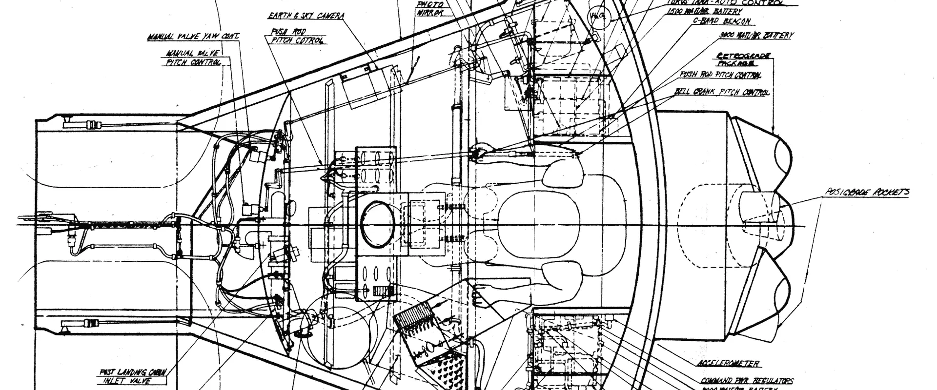
As the school year kicks off, students in the Flight Configuration program will embark on an extraordinary journey alongside NASA HUNCH Mentors, Mike Bennett and Luke Sammons! Together, the students will elevate their selected project designs and drawings to meet NASA’s rigorous drafting and manufacturing standards.

This process includes creating prototypes and engineering design units (EDU), detailed flight drawings using industry standard software as well as referencing NASA drawings standards, comprehensive documentation, and, when needed, stunning final 3D prints of piece parts or assemblies.

Whether your students are continuing an exciting project from a previous year that was selected to move to a new year or diving into a brand-new venture chosen for its potential to soar, they will gain invaluable hands-on experience that could lead to groundbreaking innovations in space exploration.

But that’s not all! Occasionally, organizations within NASA or the aerospace community will present HUNCH with unique projects that require quick turnarounds. This is where our Flight Configuration students shine! Their exceptional skills and creativity make them the ideal candidates to tackle these high-stakes challenges head-on.

Our list and in-depth information on each project is located on the Flight Configuration Canvas resource.

One resource that is provided to all Flight Configuration teachers and students is an LMS resource in Canvas. With this resource you are provided with many of the the elements that go into raising a design or drawing up to the level of an aerospace drawing ready for manufacture. Items such as types of material, metal finishing techniques, fasteners that are accepted for flight, tracking information for materials, and much more.

Once their designs are ready for production in one of our HUNCH schools, students can take pride in knowing that their projects will undergo the same rigorous safety and design standards as any product destined for Flight.

This is more than just a program; it’s an incredible opportunity to make a real impact in the world of space exploration. Let’s ignite curiosity, spark innovation, and watch as your students’ dreams take flight!

Quotes

"Best program to put CAD in practice!

Student - Luke

“Working in HUNCH has given me a deeper appreciation for how much thought goes into a clean and intuitive design. Flight configuration provides a fun challenge of turning something technical into something anyone could use.”

Student - Samantha H.

"Working with HUNCH was a fantastic way to improve upon and apply my design and drafting skills. I learned a lot while getting to work on real flight hardware."

Student - Brandon B.

Schedule

Download

Resources

Can I get certified if I work in this Program?

While Flight Configuration does not offer a CAD / Designer certification. I feel the skills learned in CAD drawing at this level will help toward industry certifications.

Where are the projects and resources for Flight Configuration teams?

The resources for our program are located in a Canvas Flight Configuration resource. Access is given to all Flight Configuration teachers, and their students that request it. The first step is registration in NASA HUNCH by the teacher . Then teachers can provide a list of students fully registered in NASA HUNCH for Flight Configuration along with their active emails.

Flight Documents

Flight Configuration Canvas Course / Resource

Cad Software Sites